High Street, Hornchurch, RM12
2 1
£1,850 pcm
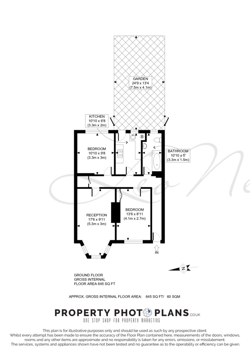
Internal floor area - Approx. gross internal floor area 645.00 SQ FT / 59.92 SQM
This is a newly refurbished two bedroom ground floor flat with private garden located on Hornchurch High Street, moments from local shops, cafés, and a short walk to Hornchurch Station. Finished to a high standard throughout, this flat features an entrance hall, spacious reception room with bay window, contemporary fitted kitchen with direct access to the garden, two double bedrooms and a fully tiled bathroom. Close to supermarkets, restaurants, amenities and local parks. Spanning approx. 650 sq. ft. Deposit: £2,134 EPC Rating: C Council Tax Band: C Local Authority: Havering
