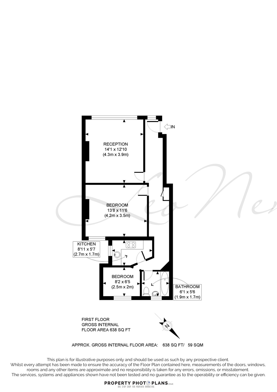
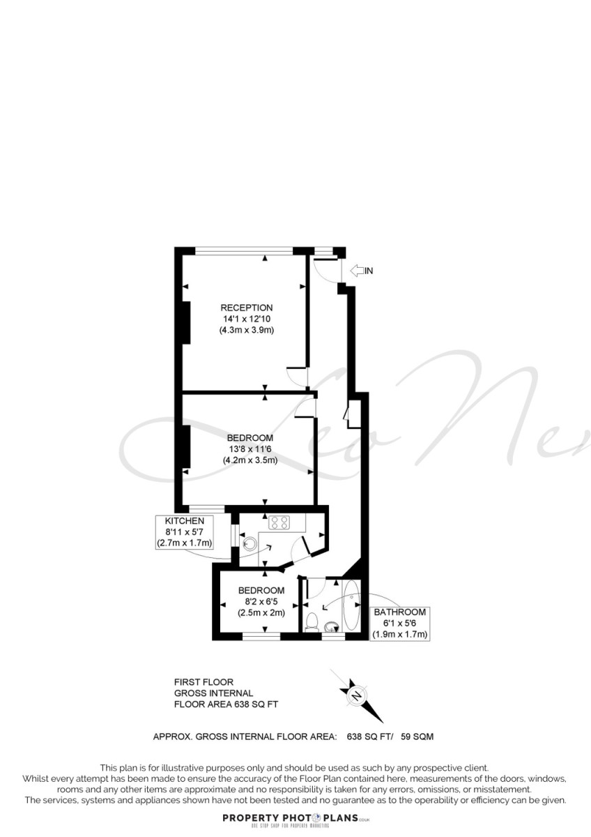
Harrow Road, London, HA0
2 1
£1,550 pcm
Internal floor area - Approx. gross internal floor area 638.00 SQ FT / 59.27 SQM
A well-presented two-bedroom first floor apartment, ideally positioned above local amenities and offering well-proportioned living space throughout. The property comprises a spacious reception room with good natural light, a separate fitted kitchen, two bedrooms (one generously sized double and a second smaller bedroom/study), and a family bathroom. The property further benefits from large windows, neutral décor, and a functional layout across approximately 638 sq ft. Situated within easy reach of a range of local shops, cafés, and everyday amenities, the property also benefits from convenient transport links providing access into Central London. Walkthrough video available – please contact Leo Newman for further information or to arrange a viewing. Deposit: £1,788 EPC Rating: C Council Tax Band: C Local Authority: Brent
